




















Cumbuco, Caucaia - Ceará




































MANAKAI BEACH RESIDENCE – APARTAMENTOS NA PRAIA DO CUMBUCO EM CAUCAIA/CE
Desperte todos os dias com o som das ondas e a brisa do mar! O Manakai Beach Residence está localizado em uma das praias mais encantadoras da região, a apenas 200 metros do mar e 300 metros do centrinho do Cumbuco – uma combinação perfeita entre tranquilidade e conveniência.
Com arquitetura moderna e pensada para o seu bem-estar, empreendimento oferece uma estrutura completa para quem valoriza conforto, lazer e qualidade de vida. Mais que um empreendimento, um convite ao lazer e à qualidade de vida todos os dias.
Deixe o seu WhatsApp e Agende uma Visita!
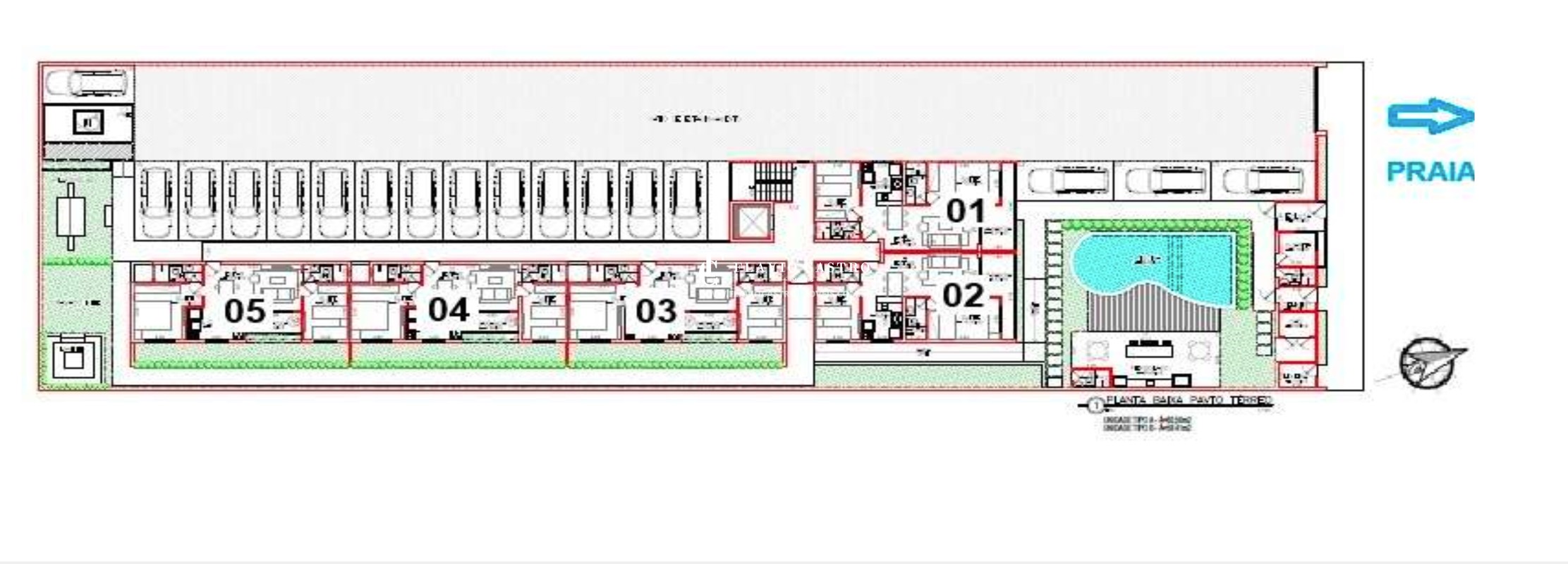
Apartamentos: 18| Apartamentos Por Andar: 05 (01 ao 03 Andar) e 03 (3 Andar)
Blocos: 01 | Pavimentos: Térreo + 03 (Tipo)
Área Privativa:
Tipo A – 58,41m²:
(Final: 03, 04 e 05)
(02 Suítes sendo 01 Reversível)
-Sala de Jantar,
-Cozinha,
-Área de Serviço,
-Varanda,
Vaga de Garagem: 01
Tipo C – 60,50m²:
(Final: 01 e 02)
(02 Suítes sendo 01 Reversível)
-Sala de Jantar,
-Cozinha,
-Área de Serviço,
-Varanda,
Vaga de Garagem: 01
Tipo C (Garden): 58,41m² + 14,98m² (Garden) = 75,48m²
(Final: 03, 04 e 05)
(02 Suítes sendo 01 Reversível)
-Sala de Jantar,
-Cozinha,
-Área de Serviço,
-Varanda,
Vaga de Garagem: 01
ÁREA COMUM | LAZER:
(TÉRREO)
-Piscina Adulto e Infantil,
-Deck Gourmet,
-Rooftop,
-Guarderia para Kite,
-Locker,
-Espaço Delivery,
-Guarita com Eclusa de Segurança
(ROOFTOP)
-Brinquedoteca,
-Academia Climatizada,
-Terraço,
DATA DE ENTREGA: 30/05/2028

MANAKAI BEACH RESIDENCE – APARTAMENTOS NA PRAIA DO CUMBUCO EM CAUCAIA/CE
Desperte todos os dias com o som das ondas e a brisa do mar! O Manakai Beach Residence está localizado em uma das praias mais encantadoras da região, a apenas 200 metros do mar e 300 metros do centrinho do Cumbuco – uma combinação perfeita entre tranquilidade e conveniência.
Com arquitetura moderna e pensada para o seu bem-estar, empreendimento oferece uma estrutura completa para quem valoriza conforto, lazer e qualidade de vida. Mais que um empreendimento, um convite ao lazer e à qualidade de vida todos os dias.
Deixe o seu WhatsApp e Agende uma Visita!
Apartamentos: 18| Apartamentos Por Andar: 05 (01 ao 03 Andar) e 03 (3 Andar)
Blocos: 01 | Pavimentos: Térreo + 03 (Tipo)
Área Privativa:
Tipo A – 58,41m²:
(Final: 03, 04 e 05)
(02 Suítes sendo 01 Reversível)
-Sala de Jantar,
-Cozinha,
-Área de Serviço,
-Varanda,
Vaga de Garagem: 01
Tipo C – 60,50m²:
(Final: 01 e 02)
(02 Suítes sendo 01 Reversível)
-Sala de Jantar,
-Cozinha,
-Área de Serviço,
-Varanda,
Vaga de Garagem: 01
Tipo C (Garden): 58,41m² + 14,98m² (Garden) = 75,48m²
(Final: 03, 04 e 05)
(02 Suítes sendo 01 Reversível)
-Sala de Jantar,
-Cozinha,
-Área de Serviço,
-Varanda,
Vaga de Garagem: 01
ÁREA COMUM | LAZER:
(TÉRREO)
-Piscina Adulto e Infantil,
-Deck Gourmet,
-Rooftop,
-Guarderia para Kite,
-Locker,
-Espaço Delivery,
-Guarita com Eclusa de Segurança
(ROOFTOP)
-Brinquedoteca,
-Academia Climatizada,
-Terraço,
DATA DE ENTREGA: 30/05/2028









Preencha os campos abaixo e encontraremos o seu imóvel

CRECI: 1076J
CNPJ: 21.624.048/0001-40 Avenida Ministro Jose Americo, 326 – Sala 1213 (12º Andar) – Quartier Empresarial – Cambeba – Fortaleza/CE
CEP: 60830-070
Localização